Door omschakeling naar een nieuw reservatiepakket is de kalender met beschikbaarheid op onze jeugdverblijven niet correct. Bel of mail best als je twijfelt.

Vergaderen met kleine of grote groep? Vormingsdagen voor je doelpubliek? Wekelijkse bijeenkomsten?

Het Scoutshuis heeft vijf vergaderzalen met wifi, whiteboard en beamers die je met één klik (clickshare) verbindt met je laptop.

Aan de centrale koffiebar - met koffie, thee, water en koekje - kan je een babbeltje slaan met de andere bezoekers.

Het Scoutshuis is toegankelijk voor mensen met een beperking.

Je kan al deze info ook terugvinden via deze link: http://www.zaalverhuur-info.be

Een dag niet genoeg? Je kan een vergaderzaal combineren met een overnachting met je groep. Of omgekeerd.

Lees meer

In detail

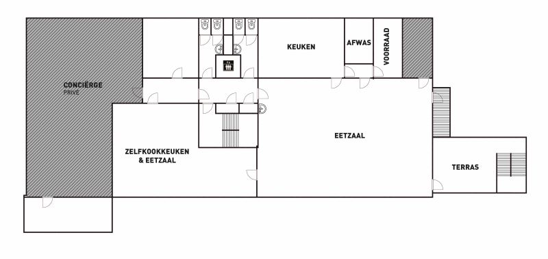
Capaciteit 136
Opsplitsbaar 6 zalen van 12 tot 25 personen
Combineerbaar huur zalen te combineren met overnachtingen en omgekeerd
Toegankelijkheidslabel A

Bekijk alles

Praktische info

zaal DURVER : 10 personen - 22m² - losse beamer verkrijgbaar - op aanvraag

zaal SPEELVOGEL : 10 personen - 22m² - short-throw + interactieve projectie + ClickShare (draadloos)

zaal AVONTURIER : 15 personen - 33m² - vaste beamer-ClickShare (draadloos)

zaal ZWERVER : 15 personen - 33m² - LED-scherm-ClickShare-hybride (draadloos)

zaal VERKENNER : 25 personen - 58m² - vaste beamer-ClickShare (draadloos)

zaal GIDS : 25 personen - 58m² - vaste beamer-ClickShare (draadloos)

zaal VERKENNER & GIDS : te combineren tot 1 grote zaal (mobiele wand): 50 personen  - 116m²

In alle zalen is er wifi, whiteboard, verlengsnoer.

In de kalender hieronder zie je de beschikbaarheid van onze kamers/slaapvloer, voor overnachtingen.

Voor beschikbaarheid van onze zalen, vragen we even te mailen/bellen of
het online formulier in te vullen.

Voor wie overdag komt vergaderen:

  • Koffie, thee, water zijn inbegrepen (1 x per dagdeel).
  • We voorzien voldoende bij aankomst en voor een pauze.
  • Concreet is dat tussen 8u30 en 11u30 in de voormiddag, en tussen 13u30 en 15u30 in de namiddag.
  • Watertap (plat water en bruiswater) gratis te gebruiken: zelf drinkflessen meebrengen.
  • Frisdrank op aanvraag: zelf te nemen uit de koelkast op het gelijkvloers:
    • 2 euro per stuk - wordt apart afgerekend, payconiq beschikbaar.
  • Vraag zeker ook naar onze lunchmogelijkheden.

Voor wie 's avonds komt vergaderen:

  • 's Avonds voorzien we geen warme dranken.
  • Watertap (plat water en bruiswater) gratis te gebruiken: zelf drinkflessen meebrengen.
  • Frisdrank op aanvraag: zelf te nemen uit de koelkast op het gelijkvloers:
    • 2 euro per stuk - wordt apart afgerekend.

Prijs per dagdeel voor jeugd en non profit sector: 2025

        • Speelvogel (max 10p) met beamer : 66,60 euro
        • Durver (max 10p) beamer op aanvraag : 66,60 euro
        • Avonturier (max 15p) met beamer : 113,90 euro
        • Zwerver (max 15p) met beamer : 113,90 euro
        • Verkenner (max 25p) met beamer : 136,10 euro
        • Gids (max 25p) met beamer : 136,10 euro
        • Combi Verkenner + Gids (max 50p ): 190,50 euro
          (incl. koffie voor max 30p - als >30p: extra koffiekost 2,30 euro pp)

Forfait – prijs per dag voor jeugd en non profit sector: 2025

        • De Scout (= ontmoetingsruimte gelijkvloers) : 194,30 euro
        • Grootkeuken + eetzaal : 285,30 euro
        • Zelfkookruimte als keuken/polyvalente ruimte : 138,90 euro

Prijzen per dagdeel voor andere groepen: 2025

        • Speelvogel (max 10p) met beamer : 83,20 euro
        • Durver (max 10p) beamer op aanvraag : 83,20 euro
        • Avonturier (max 15p) met beamer : 142,50 euro
        • Zwerver (max 15p) met beamer : 142,50 euro
        • Verkenner (max 25p) met beamer : 170,00 euro
        • Gids (max 25p) met beamer : 170,00 euro
        • Combi Verkenner + Gids (max 50p) : 238,00 euro
          (incl. koffie voor max 30p - als >30p: extra koffiekost 2,30 euro pp)

Forfait – prijs per dag voor andere groepen: 2025

        • De Scout (= ontmoetingsruimte gelijkvloers) : 213,80 euro
        • Grootkeuken + eetzaal : 285,30 euro
        • Zelfkookruimte als keuken/polyvalente ruimte : 138,90 euro

Prijzen lunch (vooraf reserveren):

      • Broodmaal + koffie en thee: 7,50 euro pp
      • Broodmaal + soep: 8,10 euro pp
      • Warme maaltijd: 12,45 euro pp
      • Bij het laten leveren van etenswaren en/of meebrengen van eigen dranken wordt een forfait van 15,00 euro in rekening gebracht.

Prijs per avond voor jeugd en non profit sector: 2025

        • Speelvogel (max 10p) met beamer : 46,40 euro
        • Durver (max 10p) beamer op aanvraag : 46,40 euro
        • Avonturier (max 15p) met beamer : 70,80 euro
        • Zwerver (max 15p) met beamer : 70,80 euro
        • Verkenner/Gids (max 25p) met beamer : 101,70 euro
        • Combi Verkenner+Gids (max 50p) : 142,38 euro

Prijs per avond voor andere groepen: 2025

        • Speelvogel (max 10p) met beamer : 58,40 euro
        • Durver (max 10p) beamer op aanvraag : 58,40 euro
        • Avonturier (max 15p) met beamer : 88,50 euro
        • Zwerver (max 15p) met beamer : 88,50 euro
        • Verkenner/Gids (max 25p) met beamer : 127 euro
        • Combi Verkenner+Gids (max 50p) : 177,80 euro

Prijs per dagdeel voor jeugd en non profit sector: 2026

        • Speelvogel (max 10p) met beamer : 68 euro
        • Durver (max 10p) beamer op aanvraag : 68 euro
        • Avonturier (max 15p) met beamer : 116,30 euro
        • Zwerver (max 15p) met beamer : 116,30 euro
        • Verkenner (max 25p) met beamer : 139 euro
        • Gids (max 25p) met beamer : 139 euro
        • Combi Verkenner + Gids (max 50p ): 194,50 euro
          (incl. koffie voor max 30p - als >30p: extra koffiekost 2,30 euro pp)

Forfait – prijs per dag voor jeugd en non profit sector: 2025

        • De Scout (= ontmoetingsruimte gelijkvloers) : 198,40 euro
        • Grootkeuken + eetzaal : 291,30 euro
        • Zelfkookruimte als keuken/polyvalente ruimte : XXX euro

Prijzen per dagdeel voor andere groepen: 2026

        • Speelvogel (max 10p) met beamer : 85 euro
        • Durver (max 10p) beamer op aanvraag : 85 euro
        • Avonturier (max 15p) met beamer : 145,50 euro
        • Zwerver (max 15p) met beamer : 145,50 euro
        • Verkenner (max 25p) met beamer : 173,60 euro
        • Gids (max 25p) met beamer : 173,60 euro
        • Combi Verkenner + Gids (max 50p) : 243,00 euro
          (incl. koffie voor max 30p - als >30p: extra koffiekost 2,30 euro pp)

Forfait – prijs per dag voor andere groepen: 2026

        • De Scout (= ontmoetingsruimte gelijkvloers) : ((213,80)) euro
        • Grootkeuken + eetzaal : ((285,30)) euro
        • Zelfkookruimte als keuken/polyvalente ruimte : ((138,90)) euro

Prijzen lunch (vooraf reserveren):

      • Broodmaal + koffie en thee: 7,70 euro pp
      • Broodmaal + soep: 8,30 euro pp
      • Warme maaltijd: 12,70 euro pp
      • Bij het laten leveren van etenswaren en/of meebrengen van eigen dranken wordt een forfait van 15,00 euro in rekening gebracht.

Prijs per avond voor jeugd en non profit sector: 2026

        • Speelvogel (max 10p) met beamer : 47,40 euro
        • Durver (max 10p) beamer op aanvraag : 47,40 euro
        • Avonturier (max 15p) met beamer : 72,30 euro
        • Zwerver (max 15p) met beamer : 72,30 euro
        • Verkenner/Gids (max 25p) met beamer : 103,90 euro
        • Combi Verkenner+Gids (max 50p) : 145,40 euro

Prijs per avond voor andere groepen: 2026

        • Speelvogel (max 10p) met beamer : 59,60 euro
        • Durver (max 10p) beamer op aanvraag : 59,60 euro
        • Avonturier (max 15p) met beamer : 90,40 euro
        • Zwerver (max 15p) met beamer : 90,40 euro
        • Verkenner/Gids (max 25p) met beamer : 129,70 euro
        • Combi Verkenner+Gids (max 50p) : 181,60 euro

De vergaderzalen kunnen apart gehuurd worden, of gecombineerd.

Wie bij ons ook wil verblijven, kan de beschikbaarheid van de kamers of de slaapvloer raadplegen.

Bij een verblijf in vol- of halfpension kan je gratis gebruik maken van een zaal/werkruimte (op basis van beschikbaarheid).

Bereken hier je richtprijs
November 2025
ma
di
wo
do
vr
za
zo
1
2
3
4
5
6
7
8
9
10
11
12
13
14
15
16
17
18
19
20
21
22
23
24
25
26
27
28
29
30
December 2025
ma
di
wo
do
vr
za
zo
1
2
3
4
5
6
7
8
9
10
11
12
13
14
15
16
17
18
19
20
21
22
23
24
25
26
27
28
29
30
31
Januari 2026
ma
di
wo
do
vr
za
zo
1
2
3
4
5
6
7
8
9
10
11
12
13
14
15
16
17
18
19
20
21
22
23
24
25
26
27
28
29
30
31
Februari 2026
ma
di
wo
do
vr
za
zo
1
2
3
4
5
6
7
8
9
10
11
12
13
14
15
16
17
18
19
20
21
22
23
24
25
26
27
28
Maart 2026
ma
di
wo
do
vr
za
zo
1
2
3
4
5
6
7
8
9
10
11
12
13
14
15
16
17
18
19
20
21
22
23
24
25
26
27
28
29
30
31
April 2026
ma
di
wo
do
vr
za
zo
1
2
3
4
5
6
7
8
9
10
11
12
13
14
15
16
17
18
19
20
21
22
23
24
25
26
27
28
29
30
Mei 2026
ma
di
wo
do
vr
za
zo
1
2
3
4
5
6
7
8
9
10
11
12
13
14
15
16
17
18
19
20
21
22
23
24
25
26
27
28
29
30
31
Juni 2026
ma
di
wo
do
vr
za
zo
1
2
3
4
5
6
7
8
9
10
11
12
13
14
15
16
17
18
19
20
21
22
23
24
25
26
27
28
29
30
Juli 2026
ma
di
wo
do
vr
za
zo
1
2
3
4
5
6
7
8
9
10
11
12
13
14
15
16
17
18
19
20
21
22
23
24
25
26
27
28
29
30
31
Augustus 2026
ma
di
wo
do
vr
za
zo
1
2
3
4
5
6
7
8
9
10
11
12
13
14
15
16
17
18
19
20
21
22
23
24
25
26
27
28
29
30
31
September 2026
ma
di
wo
do
vr
za
zo
1
2
3
4
5
6
7
8
9
10
11
12
13
14
15
16
17
18
19
20
21
22
23
24
25
26
27
28
29
30
Oktober 2026
ma
di
wo
do
vr
za
zo
1
2
3
4
5
6
7
8
9
10
11
12
13
14
15
16
17
18
19
20
21
22
23
24
25
26
27
28
29
30
31
November 2026
ma
di
wo
do
vr
za
zo
1
2
3
4
5
6
7
8
9
10
11
12
13
14
15
16
17
18
19
20
21
22
23
24
25
26
27
28
29
30
December 2026
ma
di
wo
do
vr
za
zo
1
2
3
4
5
6
7
8
9
10
11
12
13
14
15
16
17
18
19
20
21
22
23
24
25
26
27
28
29
30
31
Januari 2027
ma
di
wo
do
vr
za
zo
1
2
3
4
5
6
7
8
9
10
11
12
13
14
15
16
17
18
19
20
21
22
23
24
25
26
27
28
29
30
31
Februari 2027
ma
di
wo
do
vr
za
zo
1
2
3
4
5
6
7
8
9
10
11
12
13
14
15
16
17
18
19
20
21
22
23
24
25
26
27
28
Maart 2027
ma
di
wo
do
vr
za
zo
1
2
3
4
5
6
7
8
9
10
11
12
13
14
15
16
17
18
19
20
21
22
23
24
25
26
27
28
29
30
31
April 2027
ma
di
wo
do
vr
za
zo
1
2
3
4
5
6
7
8
9
10
11
12
13
14
15
16
17
18
19
20
21
22
23
24
25
26
27
28
29
30
Mei 2027
ma
di
wo
do
vr
za
zo
1
2
3
4
5
6
7
8
9
10
11
12
13
14
15
16
17
18
19
20
21
22
23
24
25
26
27
28
29
30
31
Juni 2027
ma
di
wo
do
vr
za
zo
1
2
3
4
5
6
7
8
9
10
11
12
13
14
15
16
17
18
19
20
21
22
23
24
25
26
27
28
29
30
Juli 2027
ma
di
wo
do
vr
za
zo
1
2
3
4
5
6
7
8
9
10
11
12
13
14
15
16
17
18
19
20
21
22
23
24
25
26
27
28
29
30
31
Augustus 2027
ma
di
wo
do
vr
za
zo
1
2
3
4
5
6
7
8
9
10
11
12
13
14
15
16
17
18
19
20
21
22
23
24
25
26
27
28
29
30
31
September 2027
ma
di
wo
do
vr
za
zo
1
2
3
4
5
6
7
8
9
10
11
12
13
14
15
16
17
18
19
20
21
22
23
24
25
26
27
28
29
30
Oktober 2027
ma
di
wo
do
vr
za
zo
1
2
3
4
5
6
7
8
9
10
11
12
13
14
15
16
17
18
19
20
21
22
23
24
25
26
27
28
29
30
31
November 2027
ma
di
wo
do
vr
za
zo
1
2
3
4
5
6
7
8
9
10
11
12
13
14
15
16
17
18
19
20
21
22
23
24
25
26
27
28
29
30
December 2027
ma
di
wo
do
vr
za
zo
1
2
3
4
5
6
7
8
9
10
11
12
13
14
15
16
17
18
19
20
21
22
23
24
25
26
27
28
29
30
31
Januari 2028
ma
di
wo
do
vr
za
zo
1
2
3
4
5
6
7
8
9
10
11
12
13
14
15
16
17
18
19
20
21
22
23
24
25
26
27
28
29
30
31
Februari 2028
ma
di
wo
do
vr
za
zo
1
2
3
4
5
6
7
8
9
10
11
12
13
14
15
16
17
18
19
20
21
22
23
24
25
26
27
28
29
Maart 2028
ma
di
wo
do
vr
za
zo
1
2
3
4
5
6
7
8
9
10
11
12
13
14
15
16
17
18
19
20
21
22
23
24
25
26
27
28
29
30
31
April 2028
ma
di
wo
do
vr
za
zo
1
2
3
4
5
6
7
8
9
10
11
12
13
14
15
16
17
18
19
20
21
22
23
24
25
26
27
28
29
30
Mei 2028
ma
di
wo
do
vr
za
zo
1
2
3
4
5
6
7
8
9
10
11
12
13
14
15
16
17
18
19
20
21
22
23
24
25
26
27
28
29
30
31
Juni 2028
ma
di
wo
do
vr
za
zo
1
2
3
4
5
6
7
8
9
10
11
12
13
14
15
16
17
18
19
20
21
22
23
24
25
26
27
28
29
30
Juli 2028
ma
di
wo
do
vr
za
zo
1
2
3
4
5
6
7
8
9
10
11
12
13
14
15
16
17
18
19
20
21
22
23
24
25
26
27
28
29
30
31
Augustus 2028
ma
di
wo
do
vr
za
zo
1
2
3
4
5
6
7
8
9
10
11
12
13
14
15
16
17
18
19
20
21
22
23
24
25
26
27
28
29
30
31
September 2028
ma
di
wo
do
vr
za
zo
1
2
3
4
5
6
7
8
9
10
11
12
13
14
15
16
17
18
19
20
21
22
23
24
25
26
27
28
29
30
Oktober 2028
ma
di
wo
do
vr
za
zo
1
2
3
4
5
6
7
8
9
10
11
12
13
14
15
16
17
18
19
20
21
22
23
24
25
26
27
28
29
30
Dag Vergadering op meerdere dagen? Geef alle data door in het veld opmerkingen na indienen aanvraag.
Aankomstuur
i
Richturen voor berekening prijs per dagdeel zijn: VM tot 13u, 13u-18u, vanaf 18u
Vertrekuur
Vergaderzalen
Versnaperingen
Groepstype Selecteer het juiste groepstype
Aantal personen

Totale prijs vergadering

Totale prijs

Beschikbaarheid

Reservatie aanvraag